Community Feedback for Arts and Library Centre - Elliott

BRC_Graphic_divider

Community Consultation: Arts and Library Centre – Elliott

Barkly Regional Council is excited to share two concept designs for a proposed new Arts and Library Centre in Elliott. This project aims to create a welcoming, functional, and culturally significant space for the community, while also providing room for future growth.


The following concept plans are developed for the Arts and library Centre, Elliott.

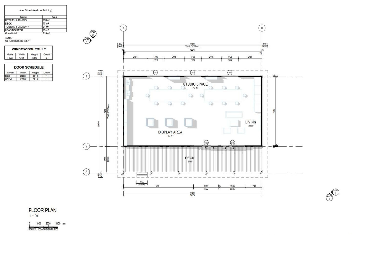
Concept Plan 1: Prepared by Aspect Engineering

  • Stage 1 (Current Project):
  • Construction of two individual structures to accommodate modern arts Centre and library.
  • Inclusion of essential amenities such as reading spaces, creative activity areas, and community gathering spots.
  • Landscaping and façade elements to reflect the character and identity of Elliott.
  • Stage 2 (Future Proposal – Subject to Funding & Approvals):
  • Addition of three staff accommodation units, parking lot and landscaping located behind the Centre.
  • This stage is not included in the current project approval but may be explored in the future if funding becomes available.


Concept Plan 1: Prepared by Aspect Engineering

  • Slide title

    Write your caption here
    Button
  • Slide title

    Write your caption here
    Button
  • Slide title

    Write your caption here
    Button
  • Slide title

    Write your caption here
    Button
  • Slide title

    Write your caption here
    Button
  • Slide title

    Write your caption here
    Button

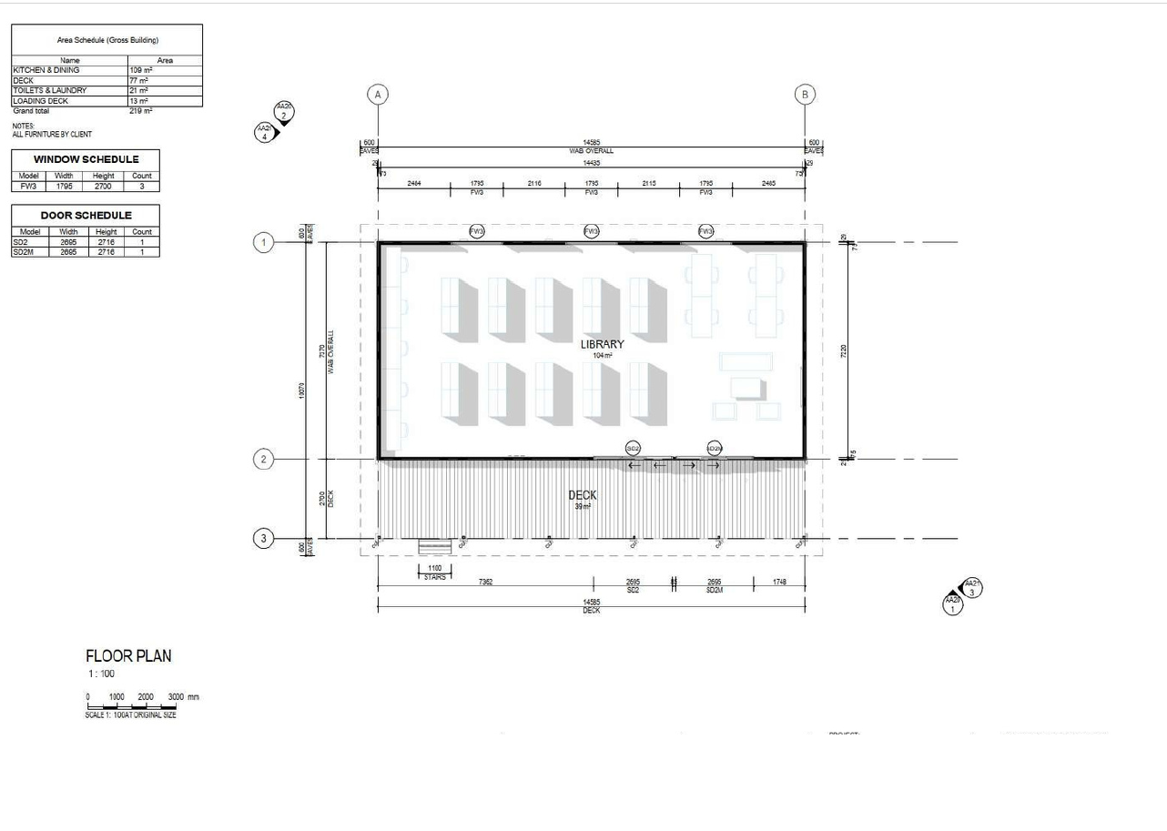
Concept Plan 2  : Prepared by Bennet Architecture


  • Stage 1 (Current Project):
  • Construction of a one large structure to accommodate modern library and arts Centre.
  • Inclusion of essential amenities such as reading spaces, creative activity areas, and community gathering spots.
  • Landscaping and façade elements to reflect the character and identity of Elliott.
  • Stage 2 (Future Proposal – Subject to Funding & Approvals):
  • Addition of three staff accommodation units located behind the Centre.
  • This stage is not included in the current project approval but may be explored in the future if funding becomes available.


  • Slide title

    Write your caption here
    Button
  • Slide title

    Write your caption here
    Button
  • Slide title

    Write your caption here
    Button
  • Slide title

    Write your caption here
    Button
  • Slide title

    Write your caption here
    Button
  • Slide title

    Write your caption here
    Button
  • Slide title

    Write your caption here
    Button
  • Slide title

    Write your caption here
    Button

Your input is vital to ensure the design reflects the needs, values, and aspirations of our community. Please review the concept plans and share your feedback through the consultation form below.



Together, we can help shape a facility that benefits all members of Elliott.


By Lis Clough August 5, 2025
By Lis Clough July 28, 2025
Tennant Creek, NT – Monday 28 July 2025 - The Barkly Regional Council today issued a strong call to action, urging the Northern Territory Government, Infrastructure Australia, and all stakeholders to reinstate Tennant Creek as a core component of the Territory Energy Link (TEL) corridor. The Council asserts that bypassing Tennant Creek risks squandering decades of strategic planning and undermining critical regional development. "Our region is not only poised to support the Territory economy but is fast becoming an engine room for the Nation," said Barkly Regional Council Mayor, Sid Vashist "As the Territory Energy Link corridor moves into its feasibility phase, it’s critical we ensure Tennant Creek remains central to this vision." Originally conceptualised as the Tennant Creek to Darwin Infrastructure Corridor, the TEL's focus has shifted to run from near Elliott to the Middle Arm Precinct in Darwin. While the proposed 670km multi-user, multi-asset infrastructure corridor is visionary, enabling gas, water, optical fibre, hydrogen, and future-facing services, the decision to bypass Tennant Creek raises significant concerns. Why Tennant Creek Must Not Be Left Out: · Logical and Historical Hub: Tennant Creek has long been envisioned as a mines and energy hub, connecting Australia’s north-south (Adelaide–Darwin) and east-west (Queensland–NT–WA) freight and energy corridors. It already hosts critical infrastructure, including rail, roads, and communications, making it uniquely positioned to support a hub-and-spoke model for resource distribution across Northern Australia. · Critical Intersections: Tennant Creek connects the Stuart Highway (north-south) with the Barkly Highway (east-west), two of Australia's most vital freight routes. Excluding Tennant Creek risks disconnecting this national infrastructure artery and losing future east-west integration, such as the Mt Isa–Tennant Creek rail proposal and Beetaloo to QLD energy export pathways. · Surge in Investment Confidence: Tennant Creek is currently experiencing significant investment from industry, exploration companies, government, and social infrastructure providers. Diverting the TEL now sends a negative signal, risking confidence, reducing private capital flow, and undermining long-term commitments in education, health, housing, and community services. · Essential Service Hub for Energy & Resource Projects: The Beetaloo Sub Basin and surrounding resource zones will require a central logistics, service, and maintenance hub. Tennant Creek offers the workforce potential, transport accessibility, and Indigenous partnerships to support this, and is better positioned to provide foundational infrastructure for hydrogen, gas, and minerals processing and services. · Cost vs. Opportunity: While realigning to Tennant Creek may appear to carry short-term cost implications, the long-term benefits – including economic resilience, diversification, private sector leverage, and Indigenous employment – offer exponential returns. The Council warns against repeating past mistakes of underinvesting in enabling infrastructure across regional Australia. The Barkly Regional Council urges the Northern Territory Government, Infrastructure Australia, and all levels of industry, investors, Traditional Owners, and the private sector to have their say. "Let us not lose the futurist and strategic vision of this corridor," the Council stated. "This is a once-in-a-century opportunity to shape our Territory’s infrastructure blueprint. Tennant Creek should not just be near this corridor — it must be part of it. Let’s not cut out the heart of the Centre. Let’s back the Barkly." Specifically, the Council is calling for: · Reinstatement of Tennant Creek in the core alignment of the Territory Energy Link. · Detailed assessment of a Tennant Creek–Elliott connection within the feasibility process. · Modelling of Tennant Creek as a hub-and-spoke node, supporting regional growth, workforce training, and service delivery. · Transparent community and stakeholder consultation to avoid decision-making that lacks Barkly representation. *** About Barkly Regional Council: Barkly Regional Council is responsible for fostering sustainable development and delivering essential services to over 8,000 residents across 322,713 square kilometres in the Northern Territory. Contact: Lis Clough Admin & Media Officer, Barkly Regional Council Lis.clough@barkly.nt.gov.au Tel: 0408 139 908
By Lis Clough July 23, 2025
Barkly Regional Council was honoured on Monday night, receiving the distinguished Royal Life Saving Society NT President’s Award , at the 2025 Administrator’s Medal Awards at Government House, Darwin. This recognition comes as the future of the Tennant Creek Public Pool faces uncertainty. The event, hosted by Administrator to the Northern Territory, His Honour Professor the Honourable Hugh Heggie AO PSM , and Ms Ruth Jones , celebrated the Diamond Jubilee of the Royal Life Saving Northern Territory, honouring six decades of commitment to water safety across the Territory. The Award received by the Council was in recognition of outstanding service to water safety and drowning prevention in the Barkly region. “A huge congratulations to our incredible pool team. Your hard work, passion, and community-first approach is deeply appreciated and now formally recognised.” said Mayor Sid Vashist. Despite this moment of celebration, the Council reflected on the critical challenge of ensuring the continued provision of this essential aquatic service for the community. The Mayor stated: “Our regional pool is the only public pool available in the 1,200km stretch between Alice Springs and Katherine. It services not just Tennant Creek, but a vast portion of the Barkly region — providing a vital space for cooling down, learning water safety, exercising, better health outcomes, and building community connection.” “Unfortunately, the infrastructure that supports this pool is ageing and beyond economic repair. The pump room — the heart of our operations— is failing. This puts immense strain on keeping the pool open, especially during our harsh summer months when temperatures soar past 40°C. When the pool isn’t operational, we know how frustrating that is for the whole community.” The Barkly Regional Council has been proactively working with the community on designing a new aquatic centre as a long-term solution, however the short-term goal is urgent State Government funding to replace the failing pump room. While at the event, the Mayor took time to meet with Jinson Charls , Minister for People, Sports and Culture to present the pool business case for this much-needed infrastructure upgrade. “While our people do incredible work, as this Award proves, they need the right tools and functional infrastructure to support them.” said Mayor Sid Vashist. “We’re committed to delivering better facilities for our region — because the Barkly deserves it.” Barkly Regional Council is responsible for fostering sustainable development and delivering essential services to over 8,000 residents over 322, 713 square kilometres across the Northern Territory.
More Posts